RESOURCE

CENTRE

DESIGN

LOCUS Resource Centre & Homeless Shelter

LOCUS Resource Centre and Homeless Shelter is a community-based centre, supporting individuals affected by homelessness by providing equitable care for all individuals, regardless of their background, identity and personal stories in an inclusive and safe space.

LEED Strategies: Rainwater Harvesting, Energy Efficient through Renewable Energy, Protection of Habitat and Restored Vegetation, Sourcing Products with Recycled Content, and Indoor Air Quality by using Low-Emitting Finishes and Materials

WELL Strategies: Thermal Comfort by using Enhanced Operable Windows, 24” Horizontal Panel Overhangs, and installing Hydronic Radiant Ceiling Panels for Radiant Heating and Radiant Cooling

Year
2023

Collaborator
Justyna Slawinski & Ashley Yachiw

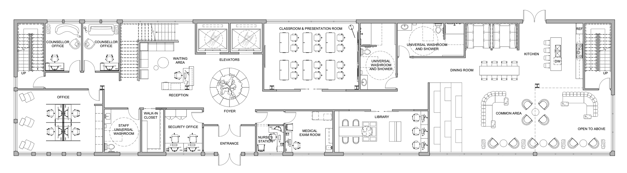
Floor Plan

Site Plan

Section with Summer Sun

South Elevation

LOCUS Common Area

LOCUS Common Area