CORPORATE

DESIGN

Certitude Advertising

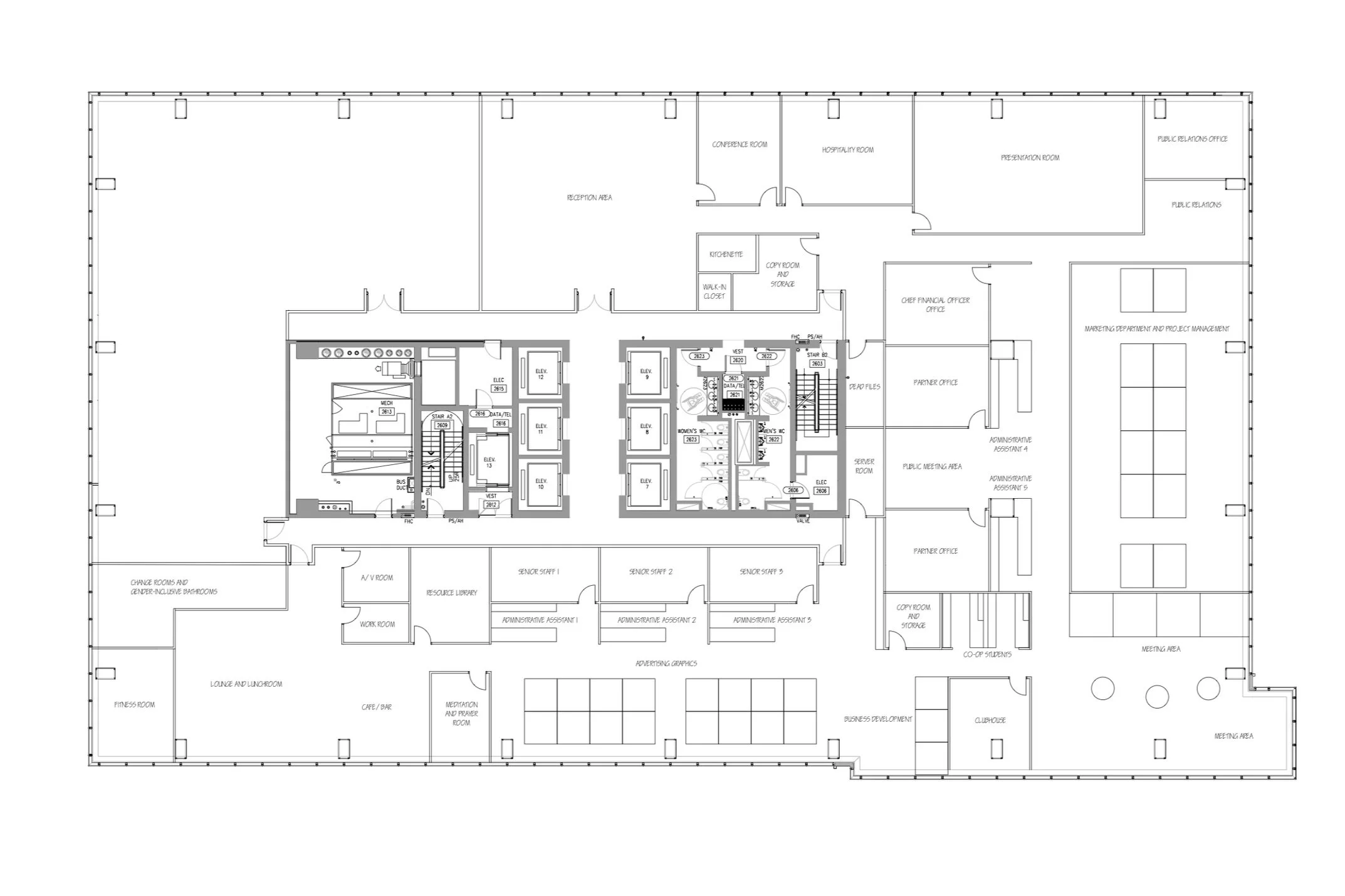
Designed with comfort in mind that can accommodate all working styles, the specific departments and rooms within Certitude are grouped together based on the Medicine Wheel and the Four Directions and the idea of equality within the corporate office. Ultimately, the goal of this design is to showcase a space where all individuals are welcomed, are able to work and relax, and can feel inspired to do the same for their own clients.

Year
2023

Collaborator
Ashley Yachiw

Artworks By
Jason Carter, Jacquie Comrie, & Karen Law

Rendered Floor Plan

Bubble Diagram

Block Plan

Floor Plan

Reflected Ceiling Plan

Sectional Elevation

Clubhouse Elevation

Advertising Graphics Department, Hallway, & Lunchroom Elevation

Reception Seating

Staff Lounge

Staff Lounge

Staff Lunchroom

Allsteel Fit Panel System, Align Storage, Altitude A6 Height Adjustable Desk

Steelcase Gesture Office Chair

Steelcase Orangebox on the QT Privacy Pods

Steelcase West Elm Work Belle Steelcase Viccarbe Colubi Lounge Chair

Steelcase Flex Mobile Power

Steelcase Flex Markerboards, Wall-Mounted and Freestanding

Steelcase Flex Perch Stool